Reserva los Robles Tu hogar de descanso está aquí
Reserva los Robles es un proyecto de vivienda turística diseñado para quienes buscan descanso, conexión con la naturaleza y una inversión inteligente.
El proyecto ofrece amplias zonas sociales que permiten aprovechar cada momento sin necesidad de salir del municipio. Piscinas, espacios recreativos y áreas verdes hacen de Reserva los Robles un lugar ideal tanto para el uso permanente como para estancias vacacionales.
Además, el proyecto brinda la posibilidad de arrendamiento por estancias, lo que lo convierte en una alternativa atractiva para quienes buscan rentabilidad inmobiliaria a través del turismo. Esta combinación de disfrute personal y retorno económico posiciona a Reserva los Robles como una de las propuestas más completas del sector.
Actualmente, el proyecto se encuentra en su segunda etapa, con últimas 12 unidades disponibles, reflejo de su alta aceptación y éxito en ventas.
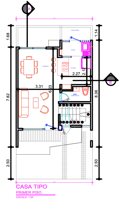
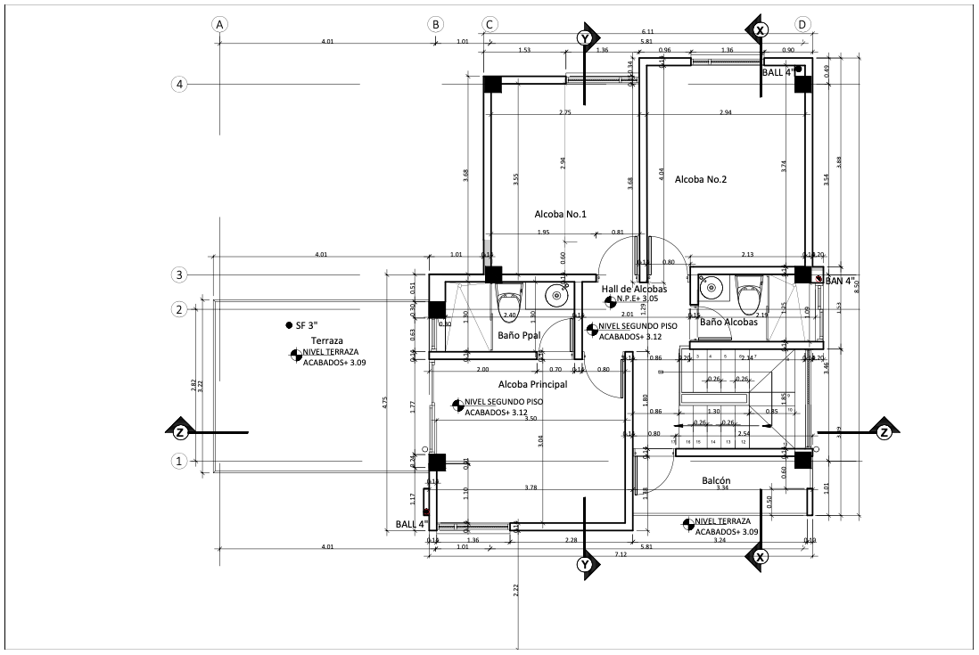
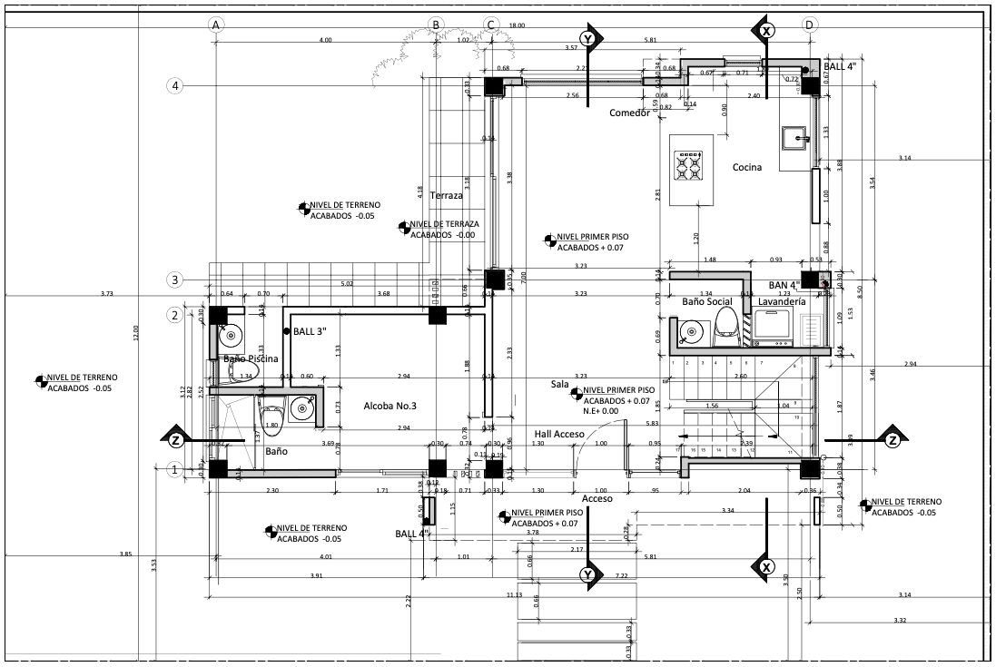
Tipos de Casas
Reserva los Robles conjuga la belleza de un diseño excepcional y una calidad inigualable, casas campestres orientadas al descanso, la relajación y a las actividades deportivas al aire libre.
Las piscinas son un adicional. Piscina de 30 metros: $97.000.000